学员毕业作品
2020-03-28 16:48:38 作者:admin 点击:979次
这是一套实际的案例是沙家圩花苑的房子,客户想让我们帮他出设计,带领了学员一起过去量房,这样学员更能感受实际的户型!
学员们都很认真的量房! 现场感觉餐厅的空间小,如何更好的利用空间,也是比较关键!再上学员们量好的CAD原始图
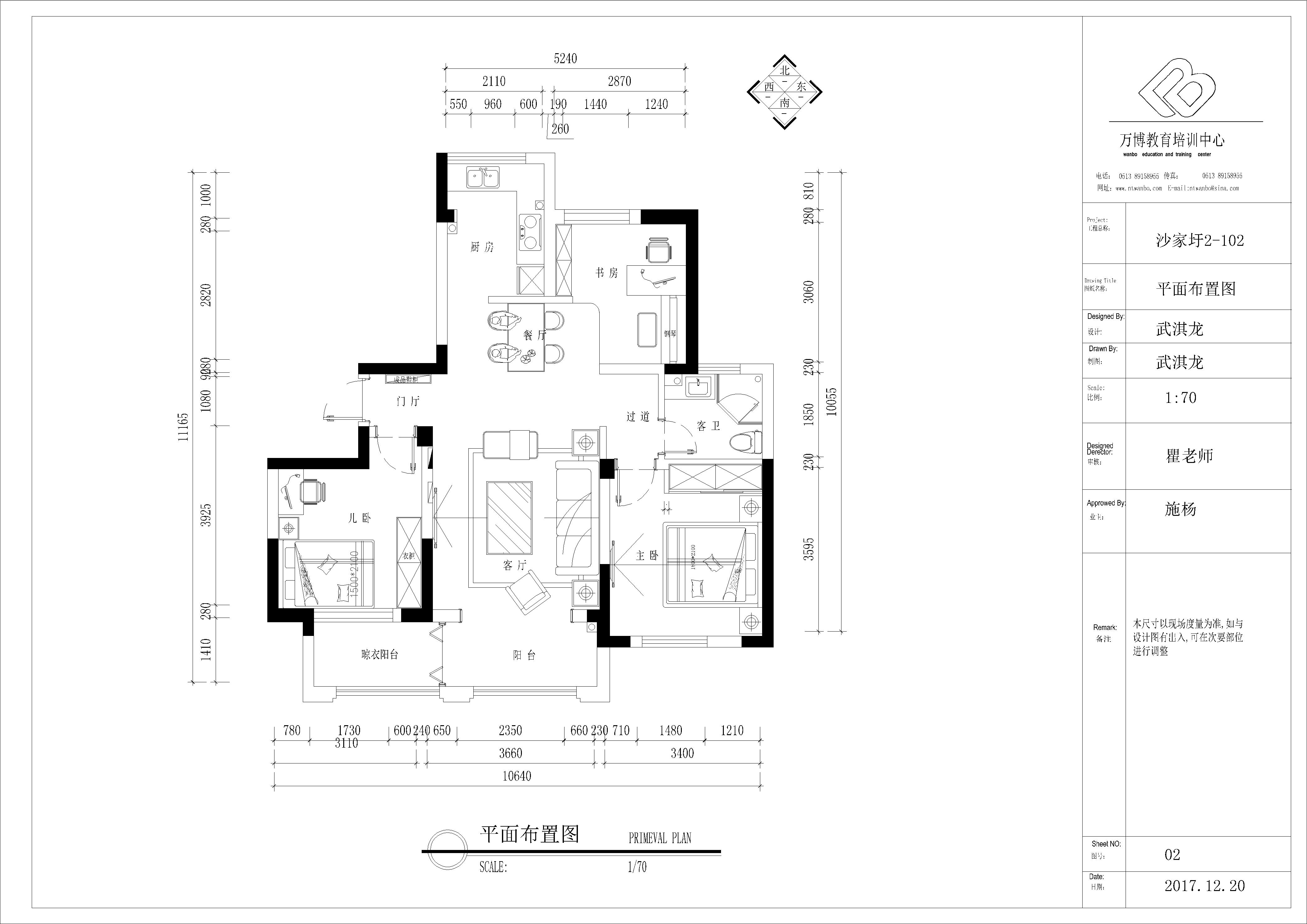
学员们画好原始图,接下来就是画平面布置图(如何更好的利用空间),把餐厅和书房间的距离墙敲点,餐厅的空间扩大,客户是需要个开放式的书房 这样一举两得!上张平面布置图
学员们都很认真,从量房开始,到画方案图及画整套施工图!以及出3D全景图!
现在画图都要养成良好的习惯,在布局上画图,图层分的很详细,平面图及整套的施工图及详图!再上全景效果图,只要扫一扫就可以进入场景里哦!
做了客厅,卧室,做了厨房的全景效果图,给客户看了,客户比较满意,是自己想要的效果图,新中式,学员在案例中,学到了更多的知识! (责任编辑:admin) |














